EN
  • Home
  • About
  • Projects
  • Gallery
  • Resume
  • Contact

Work

Projects

01

XL-M-XS Farmer's Market

2023

Hazelwood Green, Pittsburgh, PA — Commercial / Public

PublicTimberCommercial
30,000 sq ft (XL) + 3,000 sq ft (M) + XS booths→
02

Upham's Corner Library

2023

Upham's Corner, Boston, MA — Public / Cultural

PublicTimberCultural
12,000 sq ft→
03

Aspinwall Riverside Housing Community

2022

Aspinwall, PA — Housing / Community

HousingCommunityLandscape
Multi-acre site→
04

Sensory Hostel

2022

Spring Garden, Pittsburgh, PA — Hospitality

HospitalityResidentialColor
8,500 sq ft→
05

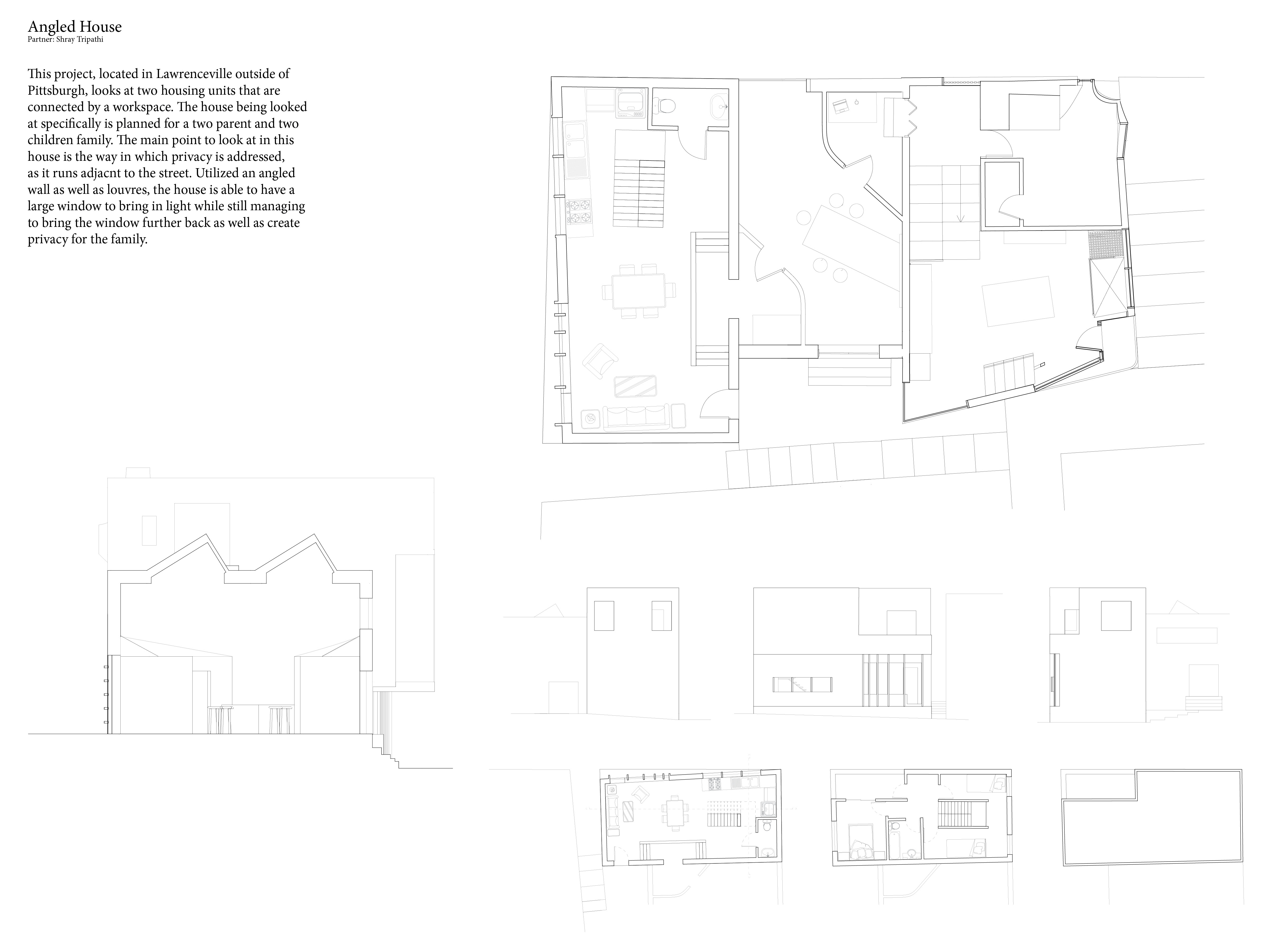
Angled House

2021

Lawrenceville, Pittsburgh, PA — Residential

ResidentialHousing
3,200 sq ft→
06

Addition to a Significant Residence

2021

Study of Cala House by Alberto Campo Baeza — Residential

ResidentialStudy
2,400 sq ft addition→

Gallery

Farmer's market site plan, renderings, and catenary structure studies

XL-M-XS Farmer's Market

2023

Library site plan, floor plans, and section drawings

Upham's Corner Library

2023

Aerial renderings, site plan, and housing cluster views of riverside community

Aspinwall Riverside Housing Community

2022

Plans and color-coded spatial diagrams showing warm public and cool private zones

Sensory Hostel

2022

Floor plans and site drawings of the angled house in Lawrenceville

Angled House

2021

Plans, folding studies, and model photographs of the Cala House addition

Addition to a Significant Residence

2021

Emma Nilson
ProjectsResumeContact
emmacnilson@gmail.comLinkedIn

© 2026 Emma Nilson